Ansamblul Brana Residence
Sibiu, zona Selimbar
An predare
2024
Camere
1-3
Interval suprafate
40-75
Interval preturi
de la 66400 euro
Credem cu tărie că meriți ceva unic și deosebit și că locuind aici vei experimenta un stil de viață cu adevărat satisfăcător, atât din punct de vedere al calității cât și din punct de vedere al confortului oferit.
Noul ansamblu rezidențial Brana Residence este compus din 3 corpuri de clădire cu regim de redus înălțime (P+2), ceea ce oferă un plus la capitolul confort și intimitate.
Poziționat la câteva minute de centrul comercial Shopping City Sibiu, în Selimbar zona Brana, acesta beneficiază de cel puțin 3 căi de acces (toate asfaltate) dinspre Sibiu: pe strada Ștefan cel Mare, Strada Octavian Goga (Selimbar) și strada P. Brana.
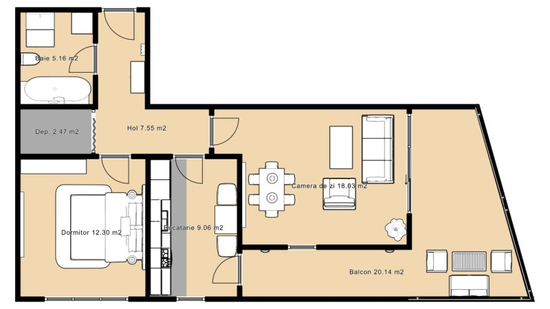
Proiectul oferă diferite tipologii de compartimentări: garsoniere, apartamente cu una, două sau trei camere decomandate, cu suprafețe utile cuprinse între 38 mp și 75 mp ale căror spații interioare au fost concepute cât mai inteligent încât fiecare metru pătrat să poată fi util și folositor.
Trebuie menționat un aspect important și anume că toate apartamentele dispun de balcoane generoase, locuri de parcare proprii delimitate și inscripționate, spații verzi și acces la zona de promenadă amenajată de primăria Selimbar.
Iluminarea spațiilor comune și exterioare vă fi cu corpuri de iluminat tip LED pentru un consum cât mai redus.
Finisaje standard apartamente:
Ușa metalică de acces placată cu panou MDF;
Pereți tencuiți ( tencuială var-ciment ), gletuiti cu materiale marca Ceresit și zugrăviți în lavabilă albă;
Instalații electrice cu tablou general individual și siguranțe pentru consumatorii de putere, doze, dulii, prize și întrerupătoare montate, instalații pentru curenți slabi ( TV, Telefon, Internet ) inclusiv prize montate;
Instalație termică din țeavă multistrat cu centrală termică în condensație și senzor de gaz, încălzire în pardoseală pentru toate apartamentele.
Interfon funcțional;
Contorizări individuale și contoare montate pentru Gaz, Curent și Apă;
Dacă optați pentru predarea la stadiul de cheie pe lângă finisajele standard aprtamentele vor fi amenajate cu materiale alese de dumneavoastră în limita unui buget: uși de interior montate; gresie și faianță în baie; obiecte sanitare; gresie și faianță în bucătărie; parchet laminat; prize și întrerupătoare montate.
Noul ansamblu rezidențial Brana Residence este compus din 3 corpuri de clădire cu regim de redus înălțime (P+2), ceea ce oferă un plus la capitolul confort și intimitate.
Poziționat la câteva minute de centrul comercial Shopping City Sibiu, în Selimbar zona Brana, acesta beneficiază de cel puțin 3 căi de acces (toate asfaltate) dinspre Sibiu: pe strada Ștefan cel Mare, Strada Octavian Goga (Selimbar) și strada P. Brana.
Proiectul oferă diferite tipologii de compartimentări: garsoniere, apartamente cu una, două sau trei camere decomandate, cu suprafețe utile cuprinse între 38 mp și 75 mp ale căror spații interioare au fost concepute cât mai inteligent încât fiecare metru pătrat să poată fi util și folositor.
Trebuie menționat un aspect important și anume că toate apartamentele dispun de balcoane generoase, locuri de parcare proprii delimitate și inscripționate, spații verzi și acces la zona de promenadă amenajată de primăria Selimbar.
Iluminarea spațiilor comune și exterioare vă fi cu corpuri de iluminat tip LED pentru un consum cât mai redus.
Finisaje standard apartamente:
Ușa metalică de acces placată cu panou MDF;
Pereți tencuiți ( tencuială var-ciment ), gletuiti cu materiale marca Ceresit și zugrăviți în lavabilă albă;
Instalații electrice cu tablou general individual și siguranțe pentru consumatorii de putere, doze, dulii, prize și întrerupătoare montate, instalații pentru curenți slabi ( TV, Telefon, Internet ) inclusiv prize montate;
Instalație termică din țeavă multistrat cu centrală termică în condensație și senzor de gaz, încălzire în pardoseală pentru toate apartamentele.
Interfon funcțional;
Contorizări individuale și contoare montate pentru Gaz, Curent și Apă;
Dacă optați pentru predarea la stadiul de cheie pe lângă finisajele standard aprtamentele vor fi amenajate cu materiale alese de dumneavoastră în limita unui buget: uși de interior montate; gresie și faianță în baie; obiecte sanitare; gresie și faianță în bucătărie; parchet laminat; prize și întrerupătoare montate.





















