KLEINE Residence
Sura Mica, zona Central
An predare
2025-2026
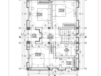
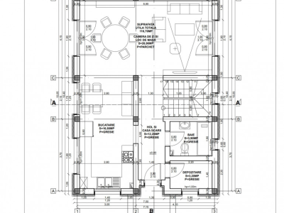
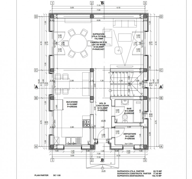
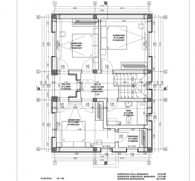
Camere
5
Interval suprafate
117mp
Interval preturi
157.000 Euro + TVA











