




Apartament 3 camere, etaj 2, intabulare vara 2026
Sibiu, Turnisor
169.279€
Camere
3
Suprafata utila
68 mp
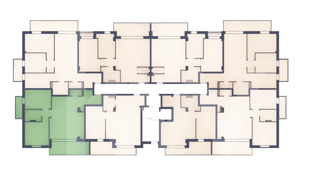
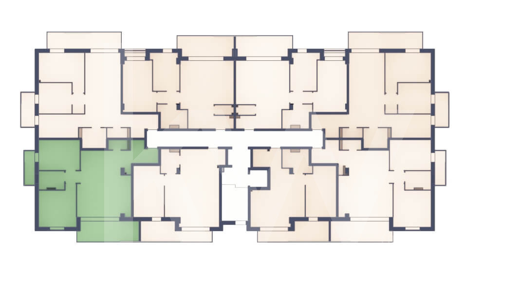
Etaj
Etaj 2
Bai
2
An constructie
2026
- ID:P12540
- Nr. camere:3
- Nr. dormitoare:2
- S. utila:68.00 mp
- S. balcoane:10.30 mp
- Comp.:Semidecomandat
- Etaj:Etaj 2
- Nr. bucatarii:1
- Nr. bai:2
- Nr. balcoane:1
- An constructie:2026
- Structura:Beton
- Tip imobil:Bloc
- Regim inaltime:D+P+3
- Clasa energetica:B
- Consum specific:126
- Indice emisii:26
Descriere
Ești dornic/ă să faci o schimbare importantă în viața ta?
Fie că te gândești să iți schimbi domiciliul sau te afli la început de drum, îți propunem un imobil pentru un stil de viață modern, pe măsura așteptărilor tale.
Unde? Într-un ansamblu rezidențial demn de secolul XXI.
Compartimentare apartament:
Bucatarie + Living - 28,2 m²
Dormitor - 13,2 m²
Dormitor 2 - 11,2 m²
Baie - 4,6 m²
Baie 2 (WC) - 1,9 m²
Hol - 6,5 m²
Sas - 2,4 m²
Suprafata balcon - 11,8 + 3,3 m²
Apartamentul se predă la alb cu:
- prize și întrerupătoare
- centrală termică Viessmann
- cronotermostat în fiecare cameră
- încălzire în pardoseală
- rulouri electrice la dormitoare.
Situată în Zona Turnișor din Sibiu, viitoarea ta casă vine la pachet cu următoarele beneficii:
- spații verzi, zone de agrement, zone de fitness;
- loc pentru sport în aer liber, loc de joacă pentru copii; loc pentru grătar în apropierea pârâului;
- siguranță: bariere de intrare pentru a limita accesul doar la viitori proprietari în cadrul ansamblului;
- 2 căi de acces: una pe partea de Vest cu ajungere rapidă în zona Industială, Aeroport și autostradă și încă una pe Str. Ogorului către centrul orașului Sibiu;
- stand de biciclete;
- parcare subterană/supraterana
- posibilitate încărcare mașini electrice (în parcarea subterană);
Apartamentul despre care îți vorbesc are o suprafață utilă de 47,1 m², cu un balcon de 10,3 m² se predă la alb cu:
- prize și întrerupătoare
- centrală termică Viessmann
- cronotermostat în fiecare cameră
- încălzire în pardoseală
- rulouri electrice la dormitoare.
Modalitati de predare:
Preț: € 169.279 cu 21% TVA inclus. (intabulare vara 2026)
Apartamentul se vinde în stadiul de “alb avansat”.
Randările sunt doar niște exemple și pot fi diferite față de realitate. Nu răspundem pentru diferențele apărute.
Locurile de parcare sunt contra-cost și pot fi în parcarea supraterană (€ 5.084/loc de parcare) sau la subsol (€ 10.168/loc de parcare).
Modalități de plată: cash și credit ipotecar cu avans minim de 15%.
Așadar îți pune la dispoziţie o Asociaţie de Proprietari bine gestionată care se ocupă şi de întreţinerea clădirilor şi a spaţiilor verzi, pentru un aspect curat, modern, adecvat.
Informatii certificat energetic conform proiect:
a) clasa energetica B;
b) consumul total specific de energie primara: 126.00 kWh/m2an;
c) indicele de emisii echivalent CO_2: 26 kgCO2/m2an;
d) consum total specific de energie din surse regenerabile: 0 kWh/m2an.
Ce spui, ne vedem să-ți prezint în detaliu acest ansamblu?
Dacă da, contactează-mă la numărul afișat!
Citeste mai mult
Fie că te gândești să iți schimbi domiciliul sau te afli la început de drum, îți propunem un imobil pentru un stil de viață modern, pe măsura așteptărilor tale.
Unde? Într-un ansamblu rezidențial demn de secolul XXI.
Compartimentare apartament:
Bucatarie + Living - 28,2 m²
Dormitor - 13,2 m²
Dormitor 2 - 11,2 m²
Baie - 4,6 m²
Baie 2 (WC) - 1,9 m²
Hol - 6,5 m²
Sas - 2,4 m²
Suprafata balcon - 11,8 + 3,3 m²
Apartamentul se predă la alb cu:
- prize și întrerupătoare
- centrală termică Viessmann
- cronotermostat în fiecare cameră
- încălzire în pardoseală
- rulouri electrice la dormitoare.
Situată în Zona Turnișor din Sibiu, viitoarea ta casă vine la pachet cu următoarele beneficii:
- spații verzi, zone de agrement, zone de fitness;
- loc pentru sport în aer liber, loc de joacă pentru copii; loc pentru grătar în apropierea pârâului;
- siguranță: bariere de intrare pentru a limita accesul doar la viitori proprietari în cadrul ansamblului;
- 2 căi de acces: una pe partea de Vest cu ajungere rapidă în zona Industială, Aeroport și autostradă și încă una pe Str. Ogorului către centrul orașului Sibiu;
- stand de biciclete;
- parcare subterană/supraterana
- posibilitate încărcare mașini electrice (în parcarea subterană);
Apartamentul despre care îți vorbesc are o suprafață utilă de 47,1 m², cu un balcon de 10,3 m² se predă la alb cu:
- prize și întrerupătoare
- centrală termică Viessmann
- cronotermostat în fiecare cameră
- încălzire în pardoseală
- rulouri electrice la dormitoare.
Modalitati de predare:
Preț: € 169.279 cu 21% TVA inclus. (intabulare vara 2026)
Apartamentul se vinde în stadiul de “alb avansat”.
Randările sunt doar niște exemple și pot fi diferite față de realitate. Nu răspundem pentru diferențele apărute.
Locurile de parcare sunt contra-cost și pot fi în parcarea supraterană (€ 5.084/loc de parcare) sau la subsol (€ 10.168/loc de parcare).
Modalități de plată: cash și credit ipotecar cu avans minim de 15%.
Așadar îți pune la dispoziţie o Asociaţie de Proprietari bine gestionată care se ocupă şi de întreţinerea clădirilor şi a spaţiilor verzi, pentru un aspect curat, modern, adecvat.
Informatii certificat energetic conform proiect:
a) clasa energetica B;
b) consumul total specific de energie primara: 126.00 kWh/m2an;
c) indicele de emisii echivalent CO_2: 26 kgCO2/m2an;
d) consum total specific de energie din surse regenerabile: 0 kWh/m2an.
Ce spui, ne vedem să-ți prezint în detaliu acest ansamblu?
Dacă da, contactează-mă la numărul afișat!
Specificatii
Curent
Apa
Canalizare
Gaz
Fibra optica
Centrala proprie
Incalzire pardoseala
Bloc izolat termic
Ferestre PVC
Rulouri PVC
Usa intrare Metal
Terasa
Wc serviciu
Boxa la subsol
Apometre
Contor gaz
Videointerfon
Lift
Spatii agrement
Gradina
Georgiana Brînzei
0752 422 164
Esti interesat de aceasta proprietate ?