









Apartament 3 camere 2 bai - 72mp utili de vanzare balcon etaj 1 Sibiu
Sibiu, Veterani
93.719€ + TVA
Camere
3
Suprafata utila
72.35 mp
Suprafata construita
100 mp
Etaj
Etaj 1
Bai
2
An constructie
2025
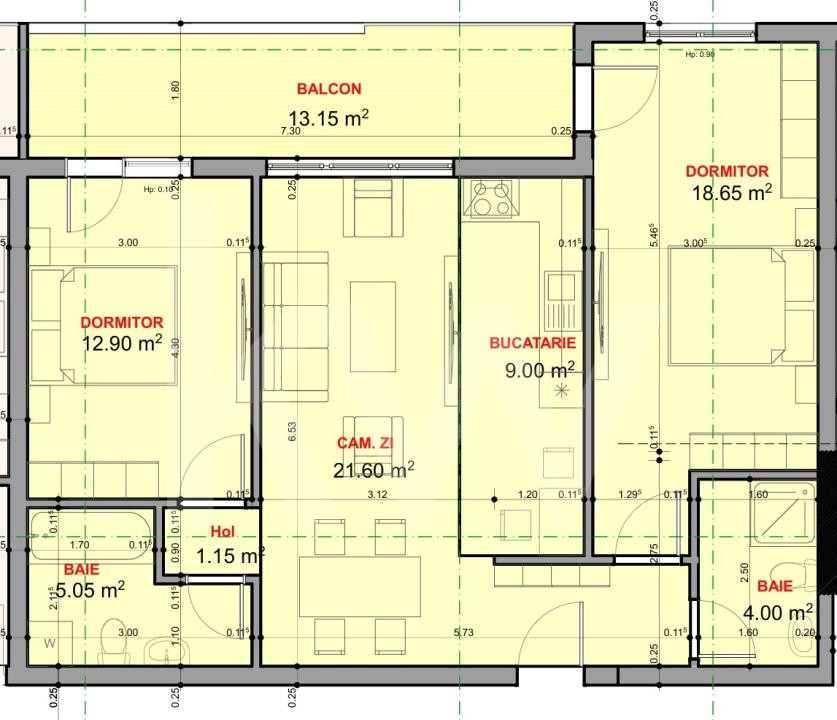
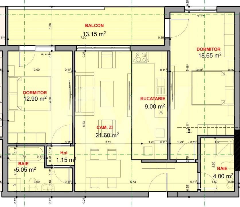
- ID:P12084
- Nr. camere:3
- Nr. dormitoare:2
- S. utila:72.35 mp
- S. balcoane:13.00 mp
- S. construita:100.00 mp
- Comp.:Decomandat
- Confort:1
- Etaj:Etaj 1
- Nr. bucatarii:1
- Nr. bai:2
- Nr. balcoane:1
- Pret parcare:4.000€ + TVA
- An constructie:2025
- Structura:Caramida
- Tip imobil:Bloc
- Regim inaltime:D+P+2
- Orientare:Mixta
- Clasa energetica:B
Descriere
Descoperiți un apartament modern și primitor, situat în Sibiu, apartament care îmbină confortul cu eleganța. Acest apartament cu 3 camere si 2 bai, disponibil pentru vânzare la prețul de 93.719€ + TVA, la stadiul de semifinisat, se află la etajul 1 sau etajul 2 sau parter inalt, al unei clădiri contemporane cu o structură din cărămidă, construită în 2025. Cu o suprafață utilă de 72 mp și o terasă generoasă de 13 mp, acest spațiu este ideal pentru familii sau tineri profesioniști în căutarea unui cămin confortabil și accesibil.
Interiorul apartamentului este ingenios compartimentat, oferind două dormitoare luminoase, două băi modern amenajate și o bucătărie open-space care invită la momente de convivialitate. Fiecare detaliu a fost gândit pentru a crea un mediu cald și primitor, iar eficiența energetică de clasă B asigură un consum redus de resurse. Cu un balcon care se deschide spre o priveliște plăcută, acest apartament devine locul perfect pentru a savura o cafea dimineața sau pentru a vă relaxa după o zi lungă. Se poate opta pentru varianta finisata la cheie, iar pretul cu TVA inclus este de 119.400 euro.
Nu ratați ocazia de a vă bucura de un stil de viață urban, într-o zonă centrală vibrantă, unde toate facilitățile sunt la îndemână. Contactați-ne astăzi pentru a programa o vizionare și descoperiți cum acest apartament poate deveni noul dumneavoastră cămin!
Citeste mai mult
Interiorul apartamentului este ingenios compartimentat, oferind două dormitoare luminoase, două băi modern amenajate și o bucătărie open-space care invită la momente de convivialitate. Fiecare detaliu a fost gândit pentru a crea un mediu cald și primitor, iar eficiența energetică de clasă B asigură un consum redus de resurse. Cu un balcon care se deschide spre o priveliște plăcută, acest apartament devine locul perfect pentru a savura o cafea dimineața sau pentru a vă relaxa după o zi lungă. Se poate opta pentru varianta finisata la cheie, iar pretul cu TVA inclus este de 119.400 euro.
Nu ratați ocazia de a vă bucura de un stil de viață urban, într-o zonă centrală vibrantă, unde toate facilitățile sunt la îndemână. Contactați-ne astăzi pentru a programa o vizionare și descoperiți cum acest apartament poate deveni noul dumneavoastră cămin!
Specificatii
Curent
Apa
Canalizare
Gaz
CATV
Acces internet
Fibra optica
Centrala proprie
Incalzire pardoseala
Izolatie Exterior
Bloc izolat termic
Ferestre PVC
Ferestre Termopan
Usa intrare Metal
Bucatarie Nemobilata
Bucatarie Neutilata
Apometre
Contor gaz
Nemobilat
Interfon
Spatii agrement
Acoperis
Alexander Urian
0751 325 933
Esti interesat de aceasta proprietate ?